Rilievi Topografici e Architettonici

Rilievi 3D Laser Scanner in tutta Italia

Acquisizione della realtà con servizi di rilievi laser scanner in tutta Italia

Comprendiamo l'importanza dell'accuratezza e della precisione quando si tratta di progetti edilizi. Ecco perché utilizziamo la più recente tecnologia di rilievi laser 3D per fornirti le misurazioni più accurate e dettagliate possibili. Il nostro team di professionisti esperti garantisce che ogni progetto venga completato con il massimo livello di qualità e attenzione ai dettagli.

I nostri servizi sono progettati per fornirti una visione completa del tuo progetto edilizio . Utilizziamo scanner laser all'avanguardia per catturare immagini ad alta risoluzione e nuvole di punti dettagliate del sito del tuo progetto. Ciò ci consente di creare modelli 3D accurati del tuo edificio, che possono essere utilizzati per un'ampia gamma di applicazioni.

I tecnici specializzati in rilievi laser della 3G GEO SRL utilizzano scanner laser Leica e Stonex di livello topografico, all'avanguardia nel settore, per raccogliere milioni di punti dati precisi per una struttura o un sito.

Con l'aiuto di ogni cliente, il nostro team interno di ingegneri, geometri e disegnatori CAD sviluppa prodotti unici che supportano le fasi di progettazione, pianificazione ed esecuzione di qualsiasi progetto.

3GGEO SRL completato oltre 500 progetti e si è guadagnata la reputazione di fornire un servizio di alta qualità, nei tempi previsti e nel rispetto del budget.

Le nostre soluzioni per i rilievi con Laser Scanner

Rilievi Topografici e Architettonici

Scan to 3D

SCAN to 3D trasforma dati di scansione laser in modelli 3D accurati, utili per design, analisi, simulazioni e documentazione digitale.
Rilievi Topografici e Architettonici

Scan to BIM

SCAN to BIM converte scansioni laser 3D in modelli BIM accurati, utili per progettazione, restauro, gestione e documentazione digitale.
Rilievi Topografici e Architettonici

Scan to CAD

SCAN to CAD converte scansioni 3D in disegni CAD 2D precisi, ideali per progettazione, documentazione tecnica e restauro di edifici o oggetti.
Rilievi Topografici e Architettonici

Scan to GIS

SCAN to GIS trasforma dati di scansione 3D in modelli geospaziali, integrandoli nei sistemi GIS per analisi, mappature e gestione territoriale.

Cosa forniamo


 Rilevamento fotografico e video degli elementi strutturali
 Riproduzione del territorio in ambiente GIS mediante la restituzione di informazioni derivanti da dati geografici geo-riferiti
 Rilievo del degrado con quadro fessurativo in pianta e nei prospetti e quadro del degrado dei materiali costruttivi
 Rilievo planimetrico e prospettico degli edifici piano quotato delle pareti esterne ed interne
 Restituzione tramite utilizzo di software fotogrammetrici e produzione file DTM(digital terrain model), ortofoto, nuvola di punti
 Redazione di piante sezioni e prospetti dello stato rilevato.

Settori in cui operiamo

La nostra esperienza strategica e le soluzioni BIM per architetti, ingegneri, subappaltatori, facility manager e pianificatori dei costi aiutano i nostri clienti a ottenere il miglior ritorno sull'investimento.

Rilievi Topografici e Architettonici
Commerciale
Cinema e Teatri| Hotel | Cliniche | Centri Commerciali | Appartamenti | Multipiano | Complessi residenziali | Edifici | Edifici Storici
Rilievi Topografici e Architettonici
Enti Pubblici
Residenziale | Commerciale |  Istruzione | Musei | Ospedali
Rilievi Topografici e Architettonici
Industriale
Impianti petroliferi e del gas | Gestione delle strutture | Costruzione offshore | Centrale elettrica| ENERGIE RINNOVABILI|
Progetti eolici| fotovoltaici|
agrivoltaici e BESS
Rilievi Topografici e Architettonici
Civile e infrastrutture
Aeroporti | Metropolitane | Ferrovie | Tunnel | Ponti | Dighe | Canali | Aeroporti | Acqua e fognatura

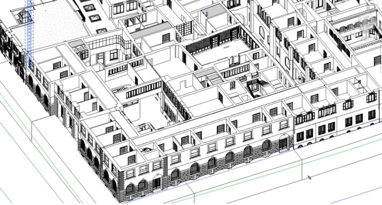
Servizio Scan to Bim

Utilizzando la tecnologia avanzata di scansione laser, convertiamo i dati di scansione acquisiti in modelli BIM 3D dettagliati, personalizzati per soddisfare le specifiche architettoniche, strutturali e MEP (meccaniche, elettriche e idrauliche).

servizi di topografia e modellazione bim

Utilizzando i dati acquisiti tramite scansione laser, li abbiamo trasformati in modelli BIM 3D dettagliati per soddisfare le specifiche architettoniche, strutturali e MEP.

I nostri esperti elaborano i dati grezzi della nuvola di punti per eliminare rumore e punti irrilevanti, garantendo un set di dati pulito e organizzato, pronto per una modellazione BIM accurata.

Utilizzando software standard del settore, trasformiamo i dati elaborati del point cloud in precisi modelli BIM 3D. Questi modelli incapsulano elementi architettonici, strutturali e MEP, fornendo una rappresentazione olistica degli edifici. I nostri servizi coprono vari progetti di modellazione BIM, tra cui la creazione di famiglie Revit, la generazione di modelli per tutti i livelli di dettaglio (LOD) e il supporto per flussi di lavoro BIM 3D, 4D e 5D.

Il nostro processo Scan to CAD converte dati precisi di point cloud in file CAD completi e modificabili. Forniamo disegni as-built di alta qualità con un'integrazione meticolosa dei dati, garantendo una precisione migliorata per progetti di ristrutturazione e costruzione, su misura per le esigenze specifiche di ogni cliente.

Per garantire l'accuratezza e l'affidabilità dei nostri modelli BIM, eseguiamo controlli di qualità approfonditi durante tutto il progetto.

Comprendiamo l'importanza della documentazione, in particolare per gli edifici storici. Il nostro processo Scan to BIM cattura dettagli intricati, fornendo modelli completi che preservano le strutture storiche con precisione.

Perché scegliere 3GGEO SRL ?

Società di Topografia e Modellazione BIM 

Siamo orgogliosi di consegnare i progetti in tempo, entro il budget e con una qualità eccezionale. Forniamo servizi per l'ingegneria  e architettura, modellazione BIM, rilievi con laser scanner e droni in tutto il territorio nazionale utilizzando il meglio di Autodesk Revit, AutoCAD, SketchUp, V-Ray, ecc..

9 Motivi:
Garantire disegni e modelli di alta qualità e privi di errori
Riduzione del 50% dei costi generali
Redazione di alta qualità a prezzi competitivi
Processo di controllo qualità multilivello
Agilità e adattabilità
Sicurezza e riservatezza dei dati
Scalabilità senza sforzo
Ripresa notturna
Reporting giornaliero/settimanale

servizi di topografia e modellazione bim

Garantire soluzioni per la progettazione ed analisi del territorio di qualità assicurata

La nostra esperienza e la nostra forte presenza nel settore garantiscono un ROI migliore

Modellazione BIM, Rilievo  topografico ,geometrico e architettonico

Siamo orgogliosi di aver fornito con successo i nostri servizi a oltre 112 Clienti

Geometri, ingegneri e disegnatori esperti

Un team altamente qualificato e competente di modellatori BIM, ingegneri e geometri.

Soluzioni BIM sostenibili con pratiche di edilizia ecologica

Prodotti finali incentrati sul cliente con BIM LOD e parametri Cobie specificati

Collaborazione
Discutiamo del progetto oggi stesso!

Hai bisogno di aiuto per un progetto BIM in corso?

Trasforma il tuo file point cloud in un modello Revit preciso utilizzando i tuoi dati scansionati. Costruiamo relazioni commerciali durature con i clienti e ci concentriamo sulla fornitura di una soddisfazione eccezionale del cliente.

Se stai cercando un fornitore di servizi di modellazione Scan to BIM affidabile ed efficiente, contattaci oggi stesso. Il nostro team di esperti BIM lavorerà a stretto contatto con te per comprendere i tuoi requisiti specifici e fornire una soluzione personalizzata che soddisfi le tue esigenze. Inviaci un'e-mail all'indirizzo info@3GGEO.it per ottenere una soluzione per il tuo progetto in corso.

Alcuni dei nostri progetti
Rilievi Topografici e Architettonici
Rilievi Topografici e Architettonici
Rilievi Topografici e Architettonici
Rilievi Topografici e Architettonici
Operiamo in TUTTA Italia ed ESTERO
(senza aggiunta spese di trasferta)
invia una mail di richiesta preventivo a: info@3GGEO.it

Per Pubblica Amministrazione e Enti Pubblici
invia una PEC di richiesta a : 3GGEO@pec.it


oppure

Chiama il + 39 059 86 78 188
dalle 08.30 alle 18.30, dal Lun/Ven.

3G GEO SRL
P.Iva/CF : 04229740362
REA MO  453679
Cap.Soc. € 10.000,00


Topografia
Bim
GIS
Chi Siamo
Contatti


Sede 
Via Clelia n. 16
41049 Sassuolo(MO)



Privacy Policy
Terms and Conditions

© 2030 3G GEO SRL

Rilievi 3D Laser Scanner nelle principali città e regioni italiane:

Rilievi 3D Laser Scanner a Abruzzo Rilievi 3D Laser Scanner a Basilicata Rilievi 3D Laser Scanner a Calabria Rilievi 3D Laser Scanner a Campania Rilievi 3D Laser Scanner a Emilia-Romagna Rilievi 3D Laser Scanner a Friuli-Venezia Giulia Rilievi 3D Laser Scanner a Lazio Rilievi 3D Laser Scanner a Liguria Rilievi 3D Laser Scanner a Lombardia Rilievi 3D Laser Scanner a Marche Rilievi 3D Laser Scanner a Molise Rilievi 3D Laser Scanner a Piemonte Rilievi 3D Laser Scanner a Puglia Rilievi 3D Laser Scanner a Sardegna Rilievi 3D Laser Scanner a Sicilia Rilievi 3D Laser Scanner a Toscana Rilievi 3D Laser Scanner a Trentino-Alto Adige Rilievi 3D Laser Scanner a Umbria Rilievi 3D Laser Scanner a Valle d'Aosta Rilievi 3D Laser Scanner a Veneto Rilievi 3D Laser Scanner a Agrigento Rilievi 3D Laser Scanner a Alessandria Rilievi 3D Laser Scanner a Ancona Rilievi 3D Laser Scanner a Aosta Rilievi 3D Laser Scanner a Arezzo Rilievi 3D Laser Scanner a Ascoli Piceno Rilievi 3D Laser Scanner a Asti Rilievi 3D Laser Scanner a Avellino Rilievi 3D Laser Scanner a Bari Rilievi 3D Laser Scanner a Barletta Rilievi 3D Laser Scanner a Belluno Rilievi 3D Laser Scanner a Benevento Rilievi 3D Laser Scanner a Bergamo Rilievi 3D Laser Scanner a Biella Rilievi 3D Laser Scanner a Bologna Rilievi 3D Laser Scanner a Bolzano Rilievi 3D Laser Scanner a Brescia Rilievi 3D Laser Scanner a Brindisi Rilievi 3D Laser Scanner a Cagliari Rilievi 3D Laser Scanner a Caltanissetta Rilievi 3D Laser Scanner a Campobasso Rilievi 3D Laser Scanner a Caserta Rilievi 3D Laser Scanner a Catania Rilievi 3D Laser Scanner a Catanzaro Rilievi 3D Laser Scanner a Chieti Rilievi 3D Laser Scanner a Como Rilievi 3D Laser Scanner a Cosenza Rilievi 3D Laser Scanner a Cremona Rilievi 3D Laser Scanner a Crotone Rilievi 3D Laser Scanner a Cuneo Rilievi 3D Laser Scanner a Enna Rilievi 3D Laser Scanner a Fermo Rilievi 3D Laser Scanner a Ferrara Rilievi 3D Laser Scanner a Firenze Rilievi 3D Laser Scanner a Foggia Rilievi 3D Laser Scanner a Forlì Rilievi 3D Laser Scanner a Frosinone Rilievi 3D Laser Scanner a Genova Rilievi 3D Laser Scanner a Gorizia Rilievi 3D Laser Scanner a Grosseto Rilievi 3D Laser Scanner a Imperia Rilievi 3D Laser Scanner a Isernia Rilievi 3D Laser Scanner a La Spezia Rilievi 3D Laser Scanner a L'Aquila Rilievi 3D Laser Scanner a Latina Rilievi 3D Laser Scanner a Lecce Rilievi 3D Laser Scanner a Lecco Rilievi 3D Laser Scanner a Livorno Rilievi 3D Laser Scanner a Lodi Rilievi 3D Laser Scanner a Lucca Rilievi 3D Laser Scanner a Macerata Rilievi 3D Laser Scanner a Mantova Rilievi 3D Laser Scanner a Massa Rilievi 3D Laser Scanner a Matera Rilievi 3D Laser Scanner a Messina Rilievi 3D Laser Scanner a Milano Rilievi 3D Laser Scanner a Modena Rilievi 3D Laser Scanner a Monza Rilievi 3D Laser Scanner a Napoli Rilievi 3D Laser Scanner a Novara Rilievi 3D Laser Scanner a Nuoro Rilievi 3D Laser Scanner a Oristano Rilievi 3D Laser Scanner a Padova Rilievi 3D Laser Scanner a Palermo Rilievi 3D Laser Scanner a Parma Rilievi 3D Laser Scanner a Pavia Rilievi 3D Laser Scanner a Perugia Rilievi 3D Laser Scanner a Pesaro Rilievi 3D Laser Scanner a Pescara Rilievi 3D Laser Scanner a Piacenza Rilievi 3D Laser Scanner a Pisa Rilievi 3D Laser Scanner a Pistoia Rilievi 3D Laser Scanner a Pordenone Rilievi 3D Laser Scanner a Potenza Rilievi 3D Laser Scanner a Prato Rilievi 3D Laser Scanner a Ragusa Rilievi 3D Laser Scanner a Ravenna Rilievi 3D Laser Scanner a Reggio Calabria Rilievi 3D Laser Scanner a Reggio Emilia Rilievi 3D Laser Scanner a Rieti Rilievi 3D Laser Scanner a Rimini Rilievi 3D Laser Scanner a Roma Rilievi 3D Laser Scanner a Rovigo Rilievi 3D Laser Scanner a Salerno Rilievi 3D Laser Scanner a Sassari Rilievi 3D Laser Scanner a Savona Rilievi 3D Laser Scanner a Siena Rilievi 3D Laser Scanner a Siracusa Rilievi 3D Laser Scanner a Sondrio Rilievi 3D Laser Scanner a Taranto Rilievi 3D Laser Scanner a Teramo Rilievi 3D Laser Scanner a Terni Rilievi 3D Laser Scanner a Torino Rilievi 3D Laser Scanner a Trapani Rilievi 3D Laser Scanner a Trento Rilievi 3D Laser Scanner a Treviso Rilievi 3D Laser Scanner a Trieste Rilievi 3D Laser Scanner a Udine Rilievi 3D Laser Scanner a Varese Rilievi 3D Laser Scanner a Venezia Rilievi 3D Laser Scanner a Verbano-Cusio-Ossola Rilievi 3D Laser Scanner a Vercelli Rilievi 3D Laser Scanner a Verona Rilievi 3D Laser Scanner a Vibo Valentia Rilievi 3D Laser Scanner a Vicenza Rilievi 3D Laser Scanner a Viterbo